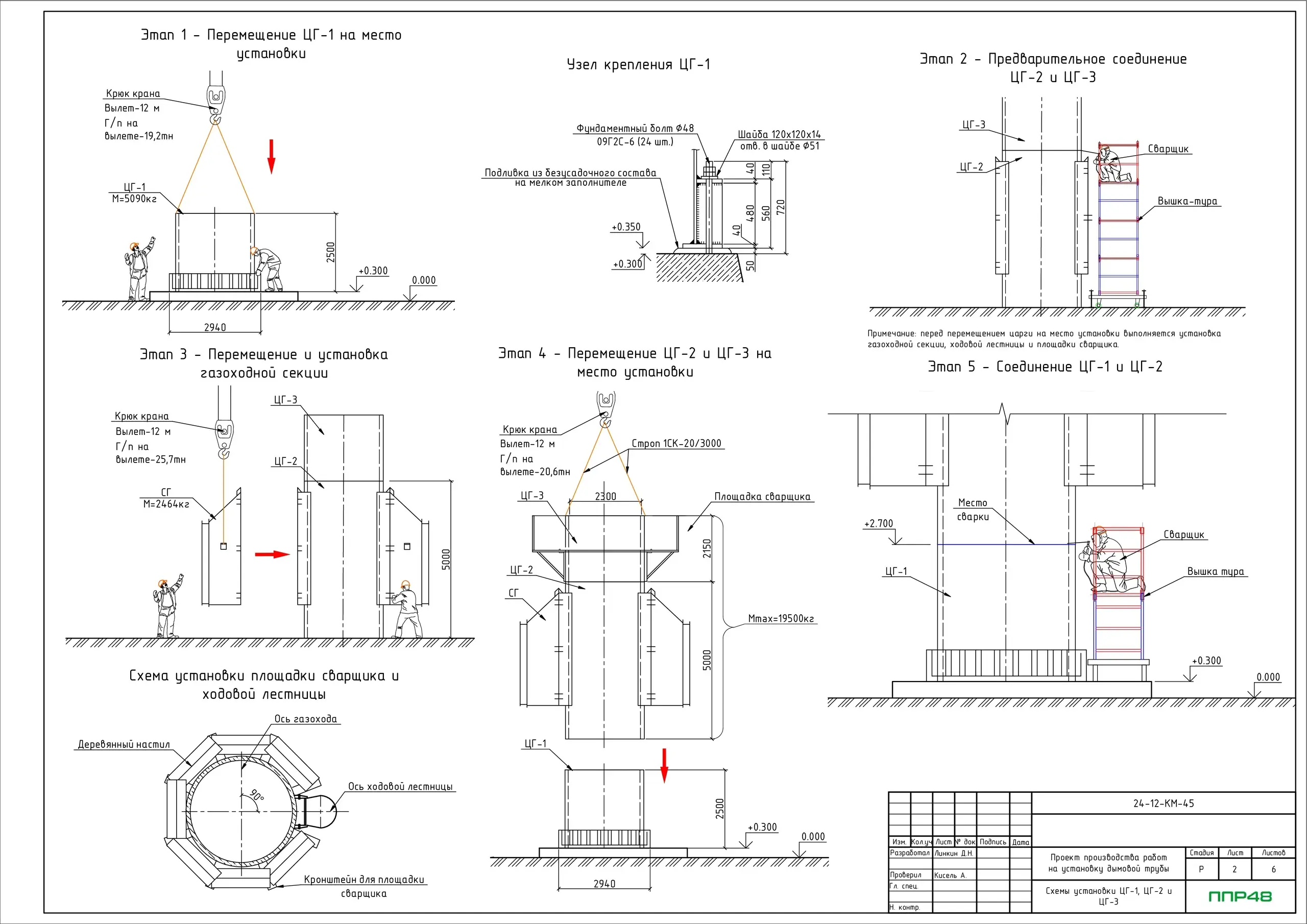
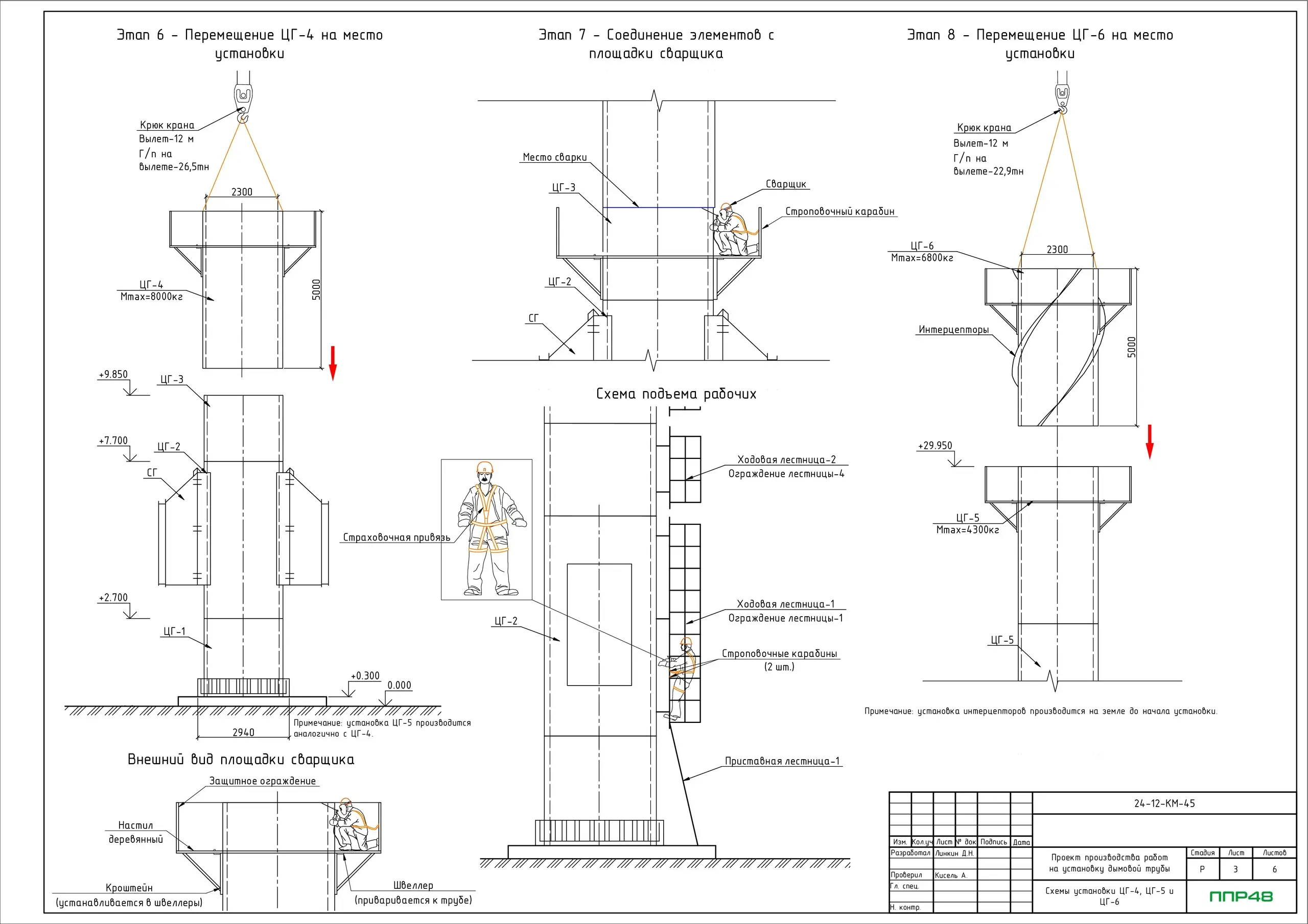
ППР на монтаж промышленного дымохода
Специалисты компании ППР 48 завершили разработку проекта производства работ (ППР) на монтаж промышленной дымовой трубы.
Документально оформленный проект включает полный цикл действий по установке и подключению металлического дымоотводящего устройства, отвечающего всем необходимым техническим и санитарным нормам.
Среди главных особенностей проекта:
- чёткий график работ, гарантирующий точное соблюдение сроков монтажа;
- подбор качественных сертифицированных материалов, обеспечивающих долгий срок службы конструкции;
- строгое следование правилам безопасной эксплуатации промышленных трубопроводов.
Использование новейших инженерных решений и прогрессивных подходов позволяет достичь максимального результата при монтаже промышленного дымохода, обеспечивая экономичность и долговечность сооружения.































