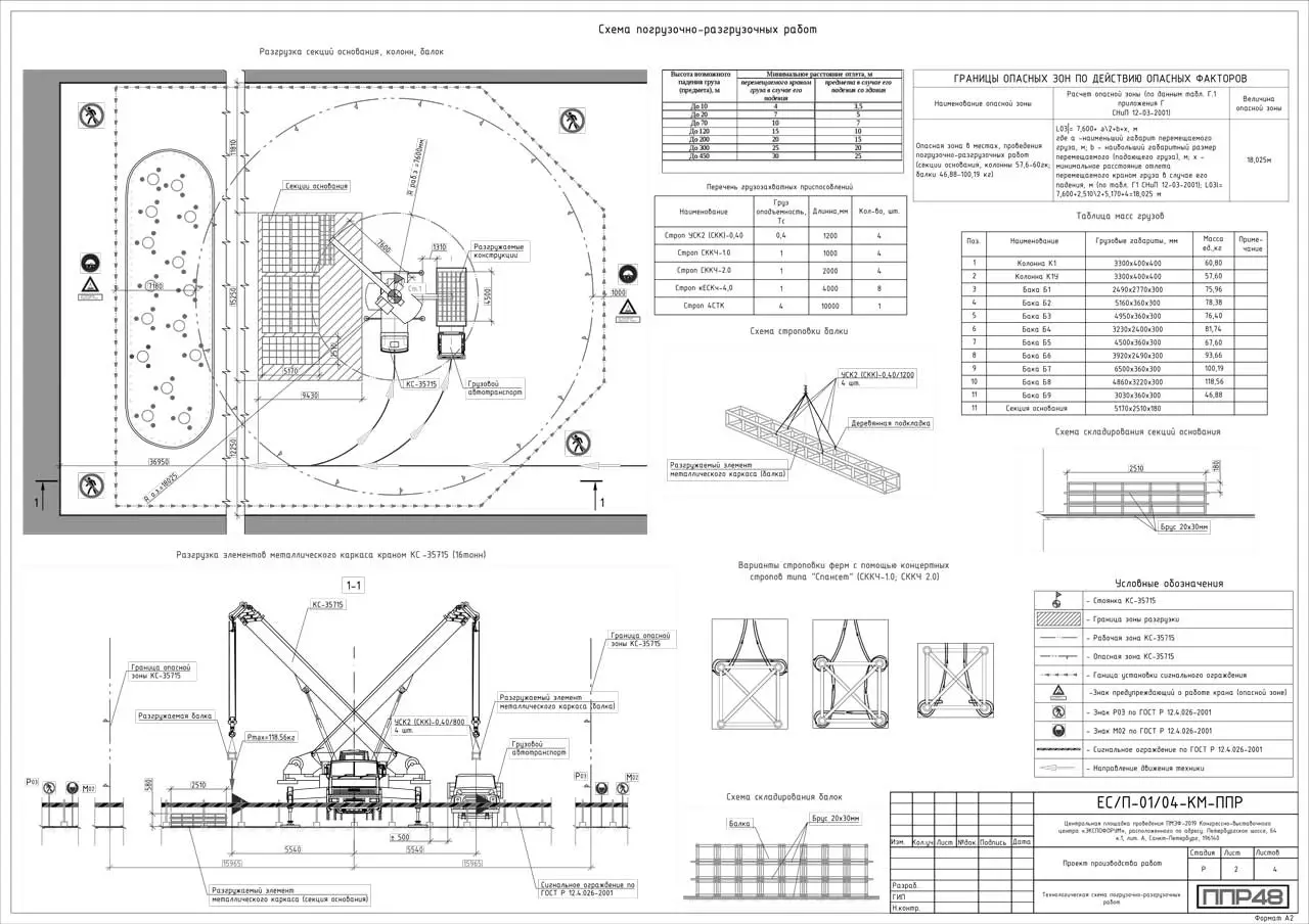
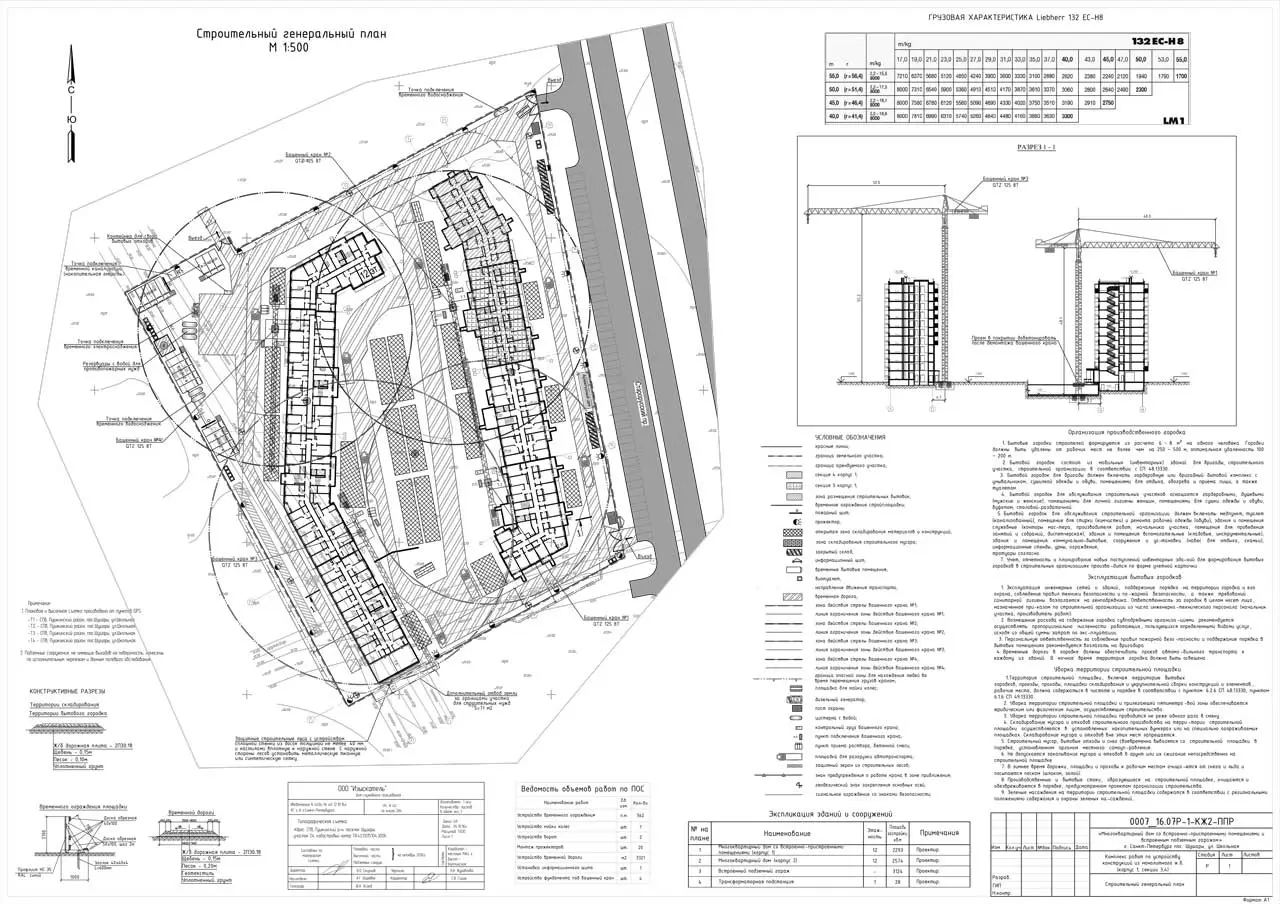
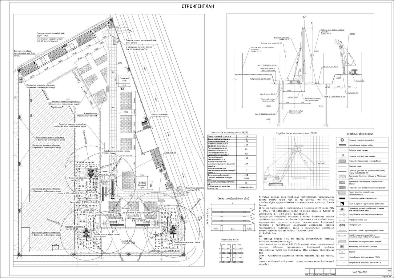
Примеры реализованных проектов ППР, ППРв, ППРк и др.
Мы рады представить Вам нашу страницу портфолио, на которой мы собрали примеры наших реализованных проектов. Здесь Вы найдете описания и изображения проектов ППР, ППРв, ППРк и многих других, которые были созданы нашей компанией.
Мы уверены, что наш опыт и профессионализм помогут Вам понять, насколько серьезно мы относимся к каждому проекту и как мы стремимся достичь максимальной эффективности в наших задачах. В нашей работе мы используем самые современные технологии и методы, чтобы обеспечить нашим клиентам наилучшие результаты.
Если у Вас есть какие-либо вопросы, не стесняйтесь обращаться к нам. Мы всегда готовы помочь и ответить на все Ваши вопросы.
С уважением, Команда ППР48.























