ППР на производство земляных работ
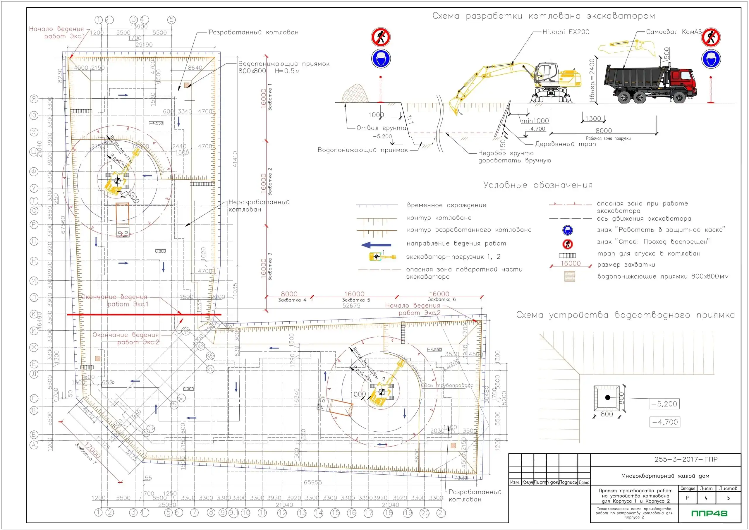
Основание сооружения - это массив грунта, взаимодействующий с его фундаментом. Для устройства основания из насыпных грунтов, в большинстве случаев, используют песок, щебень, песчано-гравийную смесь и т.д. Данный тип основания устраивается методом послойной засыпки и уплотнения грунтов. Слои должны быть разделены между собой с помощью современных синтетических тканей (геотекстиль) и полимерных материалов (мембрана). В некоторых случаях возникает необходимость в проведении таких мероприятий, как понижение уровня грунтовых вод, устройство дренажных канав и зумпфов, искусственное закрепление грунтов с целью увеличения их несущей способности. Технологические операции по устройству основания завершаются проведением его испытания и подписанием акта о его приемке. Затем можно приступать к выполнению устройства фундаментов. ППР на устройство оснований разрабатывают с учетом требований СП 22.13330.










































