Разработка ППР на высоте с применением канатного доступа. Бесплатное устранение замечаний, лицензия СРО. Срочная разработка, работаем в ЭДО.
ППР на высоте с применением канатного доступа от ППР48 в Москве
От 20 тысяч. От 2х дней. 100% гарантия согласования в надзорных органах.
Что такое план производства работ на высоте (ППРв) с применением канатного доступа и для чего он нужен
ППРв на высоте с применением канатного доступа — это документ, который описывает, как безопасно и эффективно выполнять высотные работы с применением альпинистского снаряжения и систем канатов.
Для чего нужен:
Установление предписаний по безопасному выполнению работ на конкретном объекте: прописаны используемое снаряжение, схемы креплений, порядок проведения мероприятий и действия в нештатных ситуациях.- Организация мероприятий: распределяются обязанности, порядок операций, зоны обслуживания и эвакуации.
- Соблюдение стандартов: выполнение требований по приказу № 782н об утверждении правил по охране труда при работе на высоте.
- Экономия ресурсов: оптимизация времени и затрат.
- Контроль качества: четко определенные требования и последовательность выполнения действий.
Основные элементы плана:
- Перечень и методы выполнения мероприятий
- Номенклатура снаряжения и требования к его проверке
- Схемы крепления канатов, анкерных точек, схемы выполнения работ, схемы эвакуации в случае ЧС и т.д.
- Действия при ЧС
Где применяется: Ремонт фасадов, мойка окон, промышленное обслуживание, энергетика, аварийно-спасательные мероприятий.
Вывод: План производства работ с применением канатного доступа обеспечивает безопасность, качество и соответствие стандартам при работе на высоте
В каких случаях требуется ППРв с применением канатного доступа
План производства работ на высоте (ППР) — это обязательный организационный документ, который определяет безопасные способы выполнения работ на высоте. Требования к ППР устанавливаются приказом Минтруда России от 16.11.2020 № 782н «Об утверждении Правил по охране труда при работе на высоте» (далее — Правила № 782н).
Случаи, когда требуется составление ППР на высоте:
Согласно пунктам 9 и 10 Правил № 782н, ППР обязателен в следующих случаях:
- При выполнении работ на высоте, относящихся к работам повышенной опасности, согласно законодательству РФ.
- При использовании систем канатного доступа (альпинистских методов, когда работник находится на опоре только за счёт системы удержания, страховки и канатов).
- При организации работ на высоте с применением сложного оборудования и технических средств, где наличие ППР предусмотрено проектной документацией, нормативами или внутренней документацией организации.
- При выполнении работ на высоте на объектах капитального строительства.
- При выполнении работ на высоте, связанных с перемещением грузов, если это требует обеспечения безопасности персонала.
- При выполнении работ на высоте в местах с повышенной опасностью падения предметов или человека.
Также ППРв может разрабатываться:
- по требованию заказчика работ,
- по решению работодателя — если это необходимо для обеспечения безопасности работ.
План производства работ не требуется:
- При разовых, простых и непродолжительных работах, если они не подпадают под вышеуказанные условия и не относятся к разряду работ повышенной опасности.
Состав плана производства работ на высоте с использованием канатного доступа:
Состав (содержание) ППР на высоте, в общем виде:
-
Пояснительная записка, включающая:
- Титульный лист
- Листы согласования и ознакомления
- Общие положения
- Область применения
- Подготовительные работы
-
Технология производства основных работ, включая:
- Технологическая карта на работы на высоте (с применением средств подмащивания и методом промышленного альпинизма)
-
Мероприятия по охране труда и безопасности в строительстве
-
Мероприятия по обеспечению пожарной безопасности
- Ведомость ссылочных документов
-
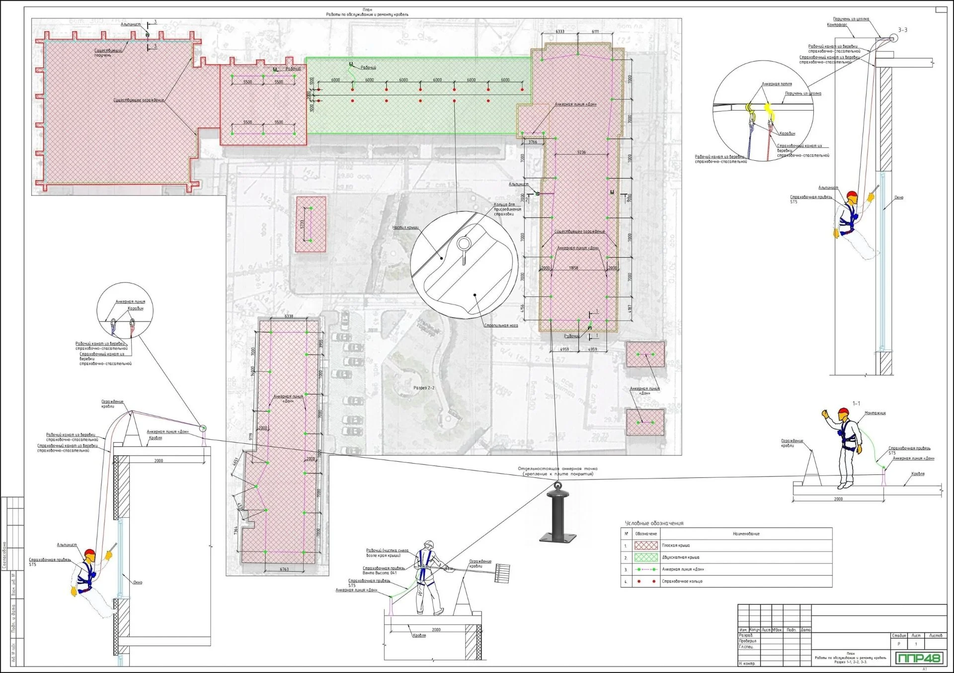
Графическая часть:
- Ситуационный план
- Схема и узлы крепления промышленных альпинистов
- Схема крепления анкерных точек
Почему стоит заказывать ППР на высоте с применением канатного доступа в компании ППР 48
Вот несколько причин, почему лучше заказать ППР на высоте для работ с канатным доступом именно в компании ППР 48:
-
Профильная специализация и опыт
Компания специализируется на разработке проектной документации для высотных работ с использованием канатных технологий. Многолетний опыт позволяет учитывать все нюансы безопасности и требования законодательства. -
Юридическая корректность и актуальность
Документация будет подготовлена в соответствии с действующими нормативами (приказ 782н, СНиП, ГОСТ и др.), что исключает возможные претензии со стороны инспекторов и служб охраны труда. -
Персональный подход
Специалисты компании имеют опыт наблюдения за выполнением реальных высотных и альпинистских работ. Они учитывают особенности конкретного объекта, подбирают подходящие схемы и инструкции, а не используют формальные шаблоны. -
Полный комплект документации
Вы получаете комплект документов, полностью соответствующий требованиям законодательства, заказчика и служб охраны труда (схемы, технологические карты, пояснения, акты согласования и др.). -
Экономия времени и снижение рисков
Профессиональное выполнение работ помогает избежать задержек и минимизировать риск ошибочных или неполных документов, что снижает юридические и организационные риски. -
Надежная репутация
Наша компания давно работает в этой сфере и пользуется доверием у заказчиков, что подтверждается отзывами.




































