А также документ имеет взаимосвязь с ППР на реконструкцию и ППР на работу ПС
Разработка ППР на монтаж и усиление, устройство балок в Москве
Данный проект тесно связан с ППР на монтаж КМ, ППР на монтаж сборного ЖБ.
От 25 тысяч. От 2 дней. Бесплатное устранение замечаний. 100% гарантия согласования.
Виды проектов ППР для строительных балок

Наша компания разрабатывает ППР для различных строительно-монтажных работ с учетом действующих стандартов, требований техники безопасности и особенностей конкретного объекта. В нашем портфолио представлены следующие основные виды ППР по для устройства и монтажа балок:
-
ППР на монтаж, демонтаж и замену мостовых кран-балок;
В каждом проекте отражаем этапы демонтажа, монтажной строповки, транспортировки и установки балок; прорабатываем схемы безопасной работы грузоподъемной техники с учётом условий площадки. -
ППР на монтаж балок из сборного железобетона;
ППР предусматривает технологию подъема и установки сборных балок, варианты крепления, фиксации и меры по обеспечению устойчивости конструкций во время монтажа. -
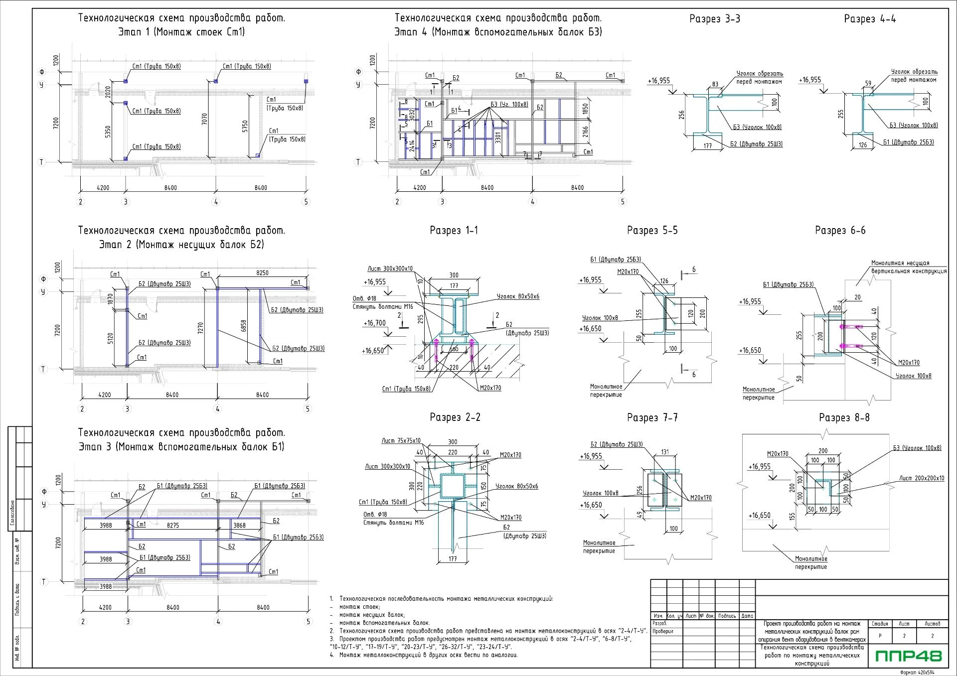
ППР на монтаж балок металлического каркаса зданий и сооружений;
В проекте подробно описываются схемы монтажа металлических балок, порядок сборки и особенности стыковки элементов с учетом типа сооружения и применяемого оборудования. -
ППР на устройство монолитных железобетонных балок, в том числе цокольных.
Наши ППР включают карты по устройству опалубки, технологию армирования, порядок подачи и укладки бетона, а также организацию контроля качества на каждом этапе. - ППР на усиление стальных балок при работах по реконструкции задний и сооружений;
- ППР на усиление балок из монолитного железобетона при работах по реконструкции задний и сооружений.
Мы внимательно анализируем исходную рабочую документацию и ситуацию на объекте, чтобы учесть все существенные нюансы. Благодаря такому подходу 90% наших проектов согласуются с первого раза, а по остальным мы оперативно устраняем замечания и доводим документацию до финального утверждения.
Особенности разработки ППР для монтажа балок каркаса здания
Разработка ППР для монтажа балок каркаса здания всегда связана с тщательным подбором организационно-технологических решений, которые должны соответствовать не только исходному проекту, но и особенностям выбранной технологии монтажа. В каждом проекте учитывается способ монтажа, тип балки (металлическая, сборная железобетонная, монолитная), а также конструктивные детали, определяющие последовательность и специфику работ.
Как правило, тяжелые элементы каркаса, к которым относятся балки, монтируются с применением подъемных механизмов — грузоподъемных кранов, талей, лебедок и другого оборудования. Поэтому в состав такого ППР обязательно включаются технологические карты (ТК) на работу выбранных подъемных средств, схемы расстановки техники и приспособлений, а также расчеты опасных зон и мероприятий по обеспечению безопасности на строительной площадке.
На содержание и наполнение ППР влияют конструктивные особенности монтируемых балок:
- Для металлических балок разрабатываются технологические карты по монтажу и строповке, схемы болтовых или сварных соединений, ТК на сварочные операции, а также меры по временной фиксации конструкций.
- В ППР для сборных железобетонных балок особое внимание уделяется схемам подъема, устройству временных опор, ТК на монтаж закладных деталей и выполнению работ на высоте.
Только команда опытных специалистов может учесть все нюансы и риски монтажа балок каркаса, сформировать оптимальные, а главное — безопасные решения для вашего объекта. Наши инженеры обладают всей необходимой экспертизой, чтобы подготовить грамотный и хорошо согласуемый ППР под ваш конкретный объект. Если вы хотите сократить сроки согласования и получить качественную документацию, — смело оставляйте заявку. Мы проконсультируем и оперативно рассчитаем стоимость разработки ППР для вашего объекта.
Почему нам стоит доверить разработку ППР для работ со строительными балками
Вот преимущества сотрудничества с нами при разработке ППР для монтажа, устройства и усиления строительных балок:
- Заключаем прозрачный и понятный договор с чётко определёнными сроками и стоимостью работ;
- Все исправления и корректировки по замечаниям бесплатно вносятся до полного согласования со службой технического заказчика;
- Имеем большой опыт подготовки разрешительной документации и работаем на рынке с 2016 года;
- Обладаем значительным количеством положительных отзывов от клиентов — и в интернете, и в официальных письмах;
- Наши специалисты имеют подтверждённую квалификацию в Ростехнадзоре;
- Выполняем проекты по всей России, учитывая часовые пояса клиентов и связываемся в удобное время.
Просто оставьте заявку или отправьте ваши исходные данные — мы оперативно рассчитаем стоимость и сроки, а также предложим оптимальные решения для вашего случая!
Каждый этап в составе ППР на монтаж или усиления балок тщательно прорабатывается нашей командой профессионалов, чтобы обеспечить высокое качество ППР и соблюдение всех требований заказчика. Мы осуществляем контроль качества и своевременно информируем заказчика о ходе работ.




































