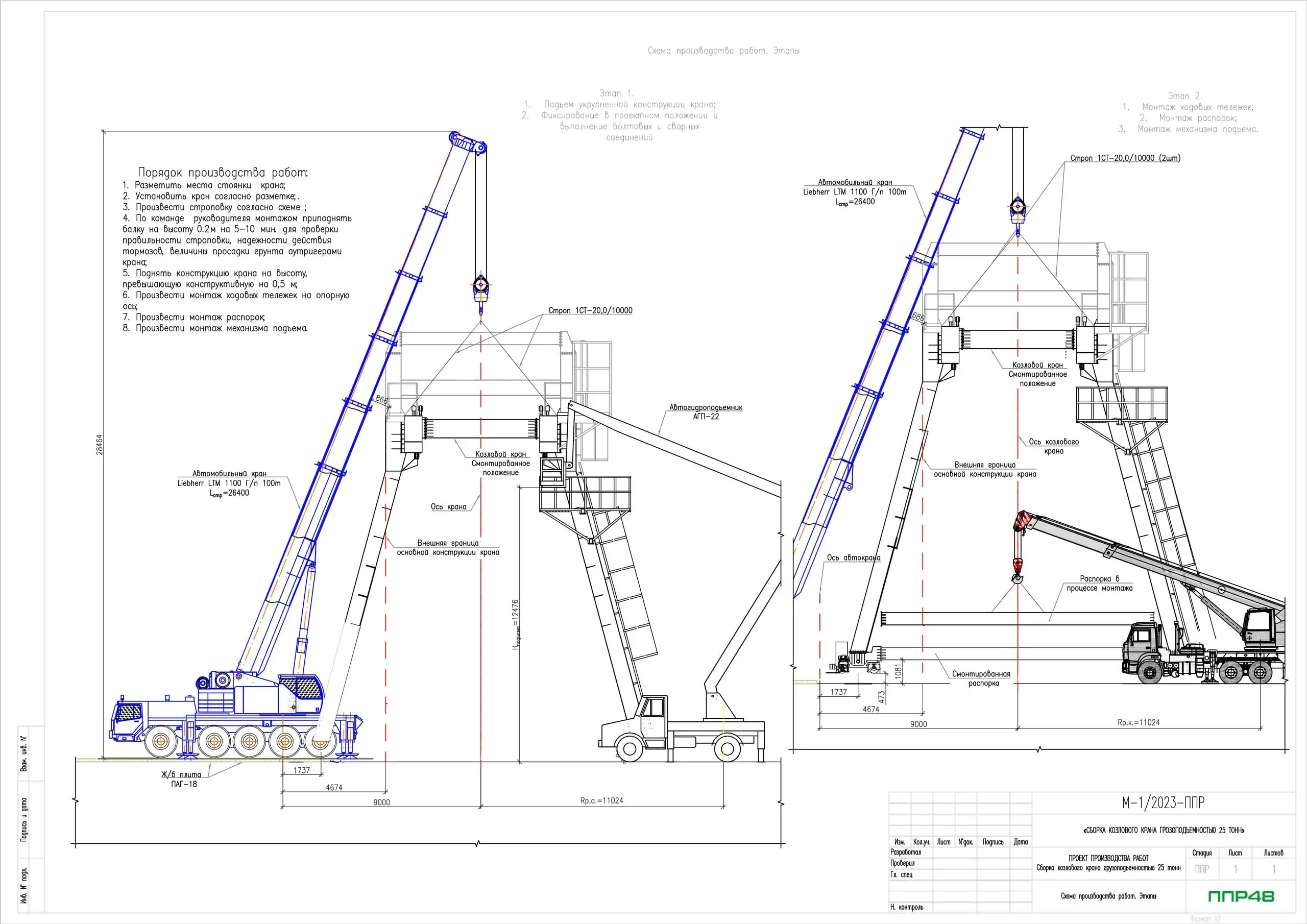
Проект производства работ на демонтаж крана
Выбор метода, по которому демонтируют кран, зависит от его вида и конструктивных особенностей, а также целей проведения демонтажа. ПС, пригодные к эксплуатации разбирают с помощью одного или нескольких совместно работающих автокранов. В этом случае ППР на демонтаж крана будет похож на стандартный ППРк, но с включением в его состав работ, выполняемых ручным способом. После того как конструкцию существующего подъемного сооружения укладывают на землю, ее разбирают, грузят на трал, перевозят на склад или на следующий объект. В случаях, когда необходимо разобрать кран, утративший свои эксплуатационные характеристики, возможно обойтись без вспомогательной техники. Его металлоконструкции подрезают, стропят и тянут бульдозером до тех пор, пока кран не рухнет. После падения конструкции, ее разрезают на металлолом, грузят в ПУХТО и увозят с объекта. Общие сведения о производстве данных видов работ представлены в типовых технологических картах.




































