Виды ППР в промышленной отрасли
Основными видами проектов производства работ в промышленной сфере являются:
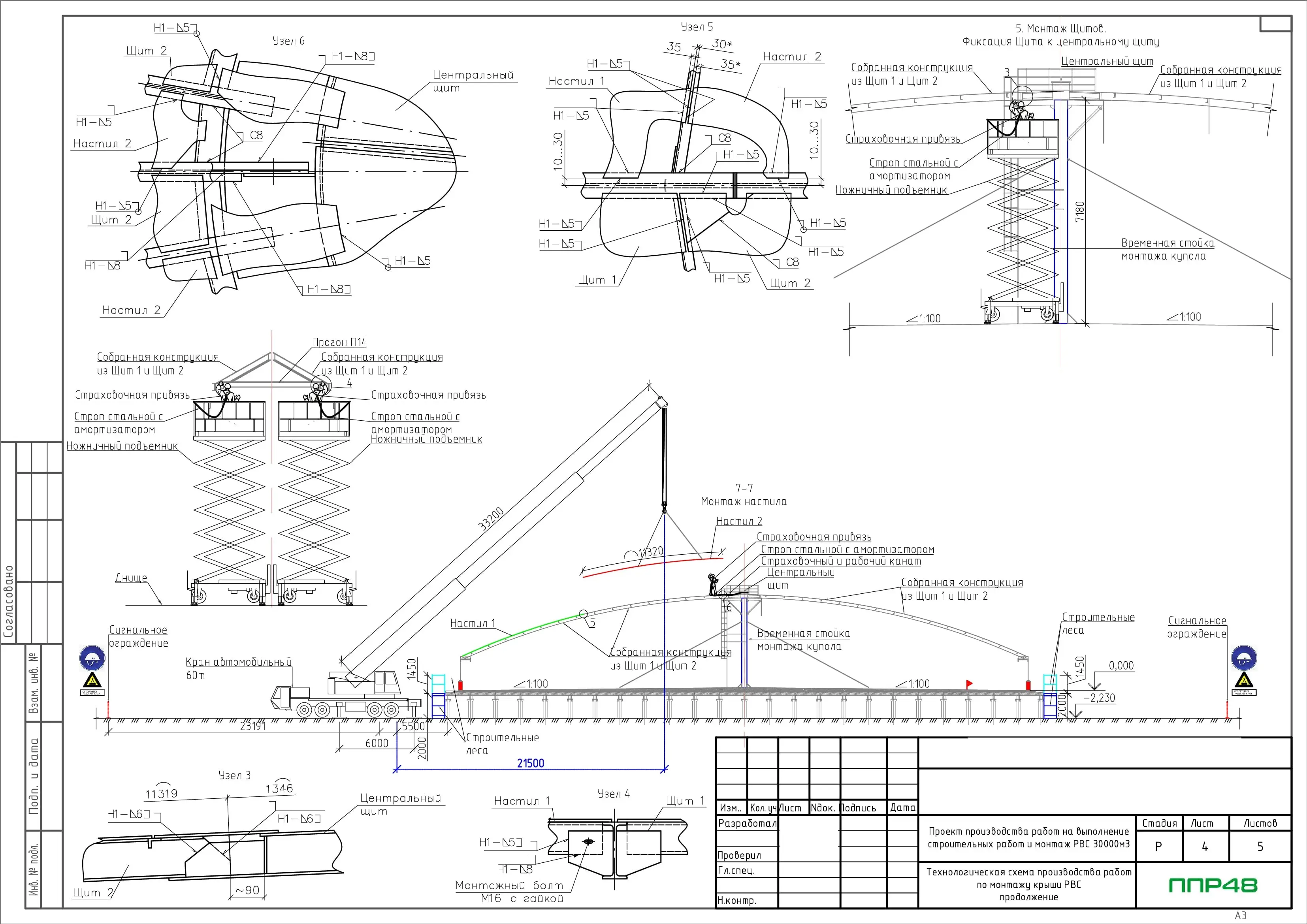
- ППР на монтаж-демонтаж резервуара;
- ППР на монтаж-демонтаж дымовой трубы;
- ППР на монтаж-демонтаж технологического оборудования;
- ППР на возведение градирни;
- ППР на строительство промышленного здания;
- ППР на для объектов нефтегазовой отрасли;
- ППР для объектов компании "РОСНЕФТЬ";
- ППР на монтаж и демонтаж котельный и котельного оборудования
Данную группу проектов объединяет такие факторы, как высокая сложность производства работ, использование тяжелой строительной техники, наличие факторов риска причинения вреда здоровью сотрудников, занятых выполнением СМР.






















































