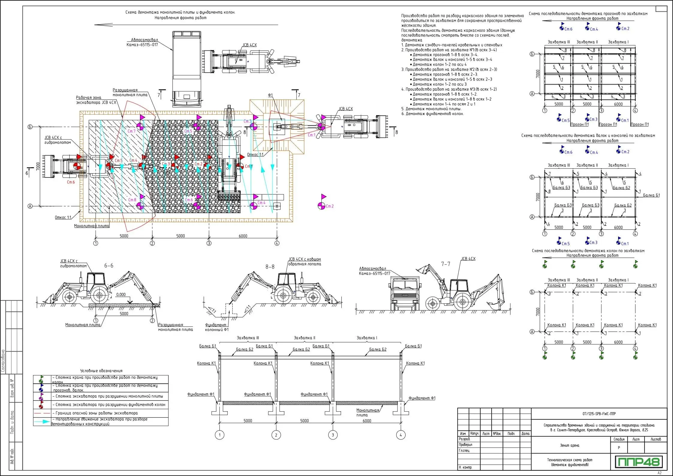
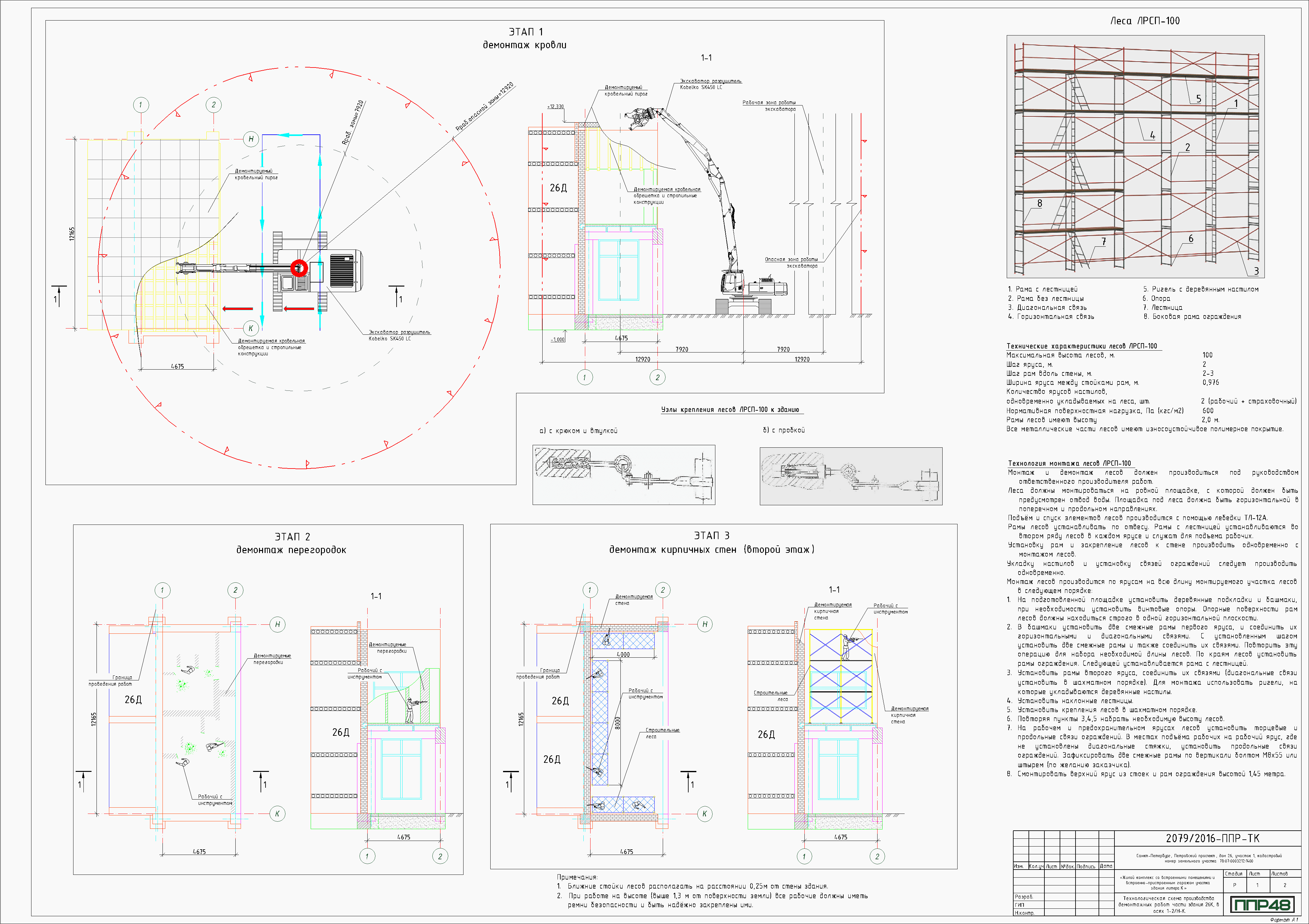
ППР на демонтаж и снос здания - особенности разработки
Проект производства работ на демонтаж объекта и его сноса разрабатывается на основе проекта по сносу (ПОД) и прочих исходных материалов . Количество разрабатываемых ППР должно соответствовать кол-ву заданий, обозначенных в ПОД. В процессе разработки ППР при демонтажных работах рекомендуется учитывать положения из СТО НОСТРОЙ 2.33.53-2011. Важной целью проекта является обеспечение безопасности при выполнении демонтажных работ. Поэтому в его состав включают раздел по охране труда при демонтаже и сносе конструкций. Данный раздел должен учитывать опасные ситуации, возникающие вследствие обрушения демонтируемых конструкций при сносе, предусматривать меры по их устранению. Для того, чтобы сохранить зеленые насаждения, находящиеся в зоне осуществления технологических операций при сносе, в документ следует включить раздел по охране окружающей среды.
















































