Данный тип проектов входит в линейку ППР на бетонирование
ППР на монолитные работы от ППР48 в Москве
Мы занимаемся оказанием комплекса услуг по разработке ППР.
От 2х дней. От 25 тысяч рублей. Бесплатное устранение замечаний. 100% гарантия согласования.
Что такое ППР на монолитные работы и для чего он нужен

ППР на монолитные работы разрабатывают с учетом требований нормативных документов, устанавливающих правила проектирования и организации строительных мероприятий в данной области. Каждая технологическая карта, входящая в состав проекта, должна описывать этапы бетонирования отдельного элемента в части строения или инженерного сооружения.
Устройство монолитных конструкций состоит из таких технологических циклов, как: армирование; установка опалубки; бетонирование. ППР устанавливает наиболее оптимальную методику, в соответствии с которой реализуются все вышеперечисленные процессы. Также не стоит забывать о том, что технологии бетонирования различных конструкций, имеют ряд индивидуальных особенностей. Все это должно найти свое отражение в технологических картах проекта.
Мы готовы оперативно составить для вас коммерческое предложение — просто ответьте на несколько вопросов о вашем строительстве. Также, кроме ППР на монолитные работы, мы разрабатываем технологические карты на различные строительные операции.
Нормативная документация, которую используют сотрудники нашей компании для создания ППР

Компания осуществляет подготовку ППР исключительно с опорой на действующие нормативные акты и стандарты:
- СП по организации строительных процессов;
- СП 126.13330 — геодезические процессы на строительной площадке;
- СП 45.13330 — требования к основаниям и фундаментам;
- ГОСТ 12.3.002-75 — стандарты производственных процессов и техники безопасности;
- Прочие документы по охране труда.
Обратившись в нашу компанию, вы получите разрешительную документацию, полностью соответствующую требованиям проверяющих органов и позволяющую обеспечить эффективное выполнение монолитных работ на объекте.
Состав ППР на комплекс работ по бетонированию монолитных конструкций
При создании ППР для монолитных работ особое внимание уделяется следующим разделам:
- Геодезические мероприятия. В данном пункте описываются параметры строительной площадки, особенности местности, а также методы и этапы выполнения необходимых геодезических работ.
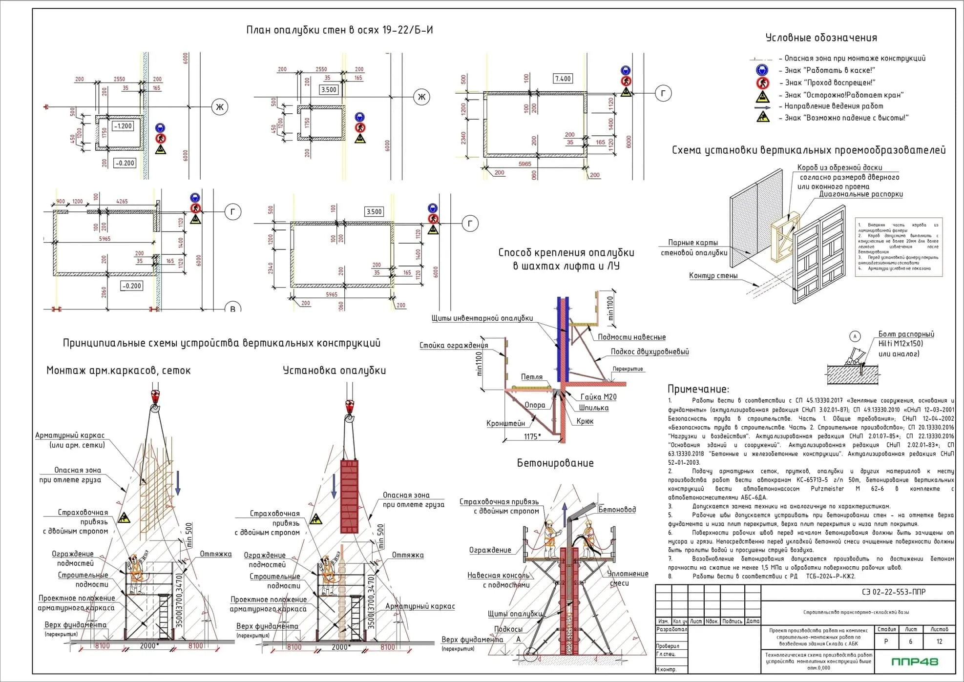
- Технология выполнения монолитных работ. Здесь приводятся методы армирования и бетонирования, порядок монтажа опалубки, последовательность заливки бетона и контроль его качества. Описанные решения иллюстрируются текстовыми пояснениями и графическими схемами.
- Проектирование и монтаж опалубочных систем. Описываются размеры и характер применяемой опалубки, способы ее размещения на объекте, правила установки и снятия.
- Расчёт трудовых и технических ресурсов. В этом разделе проводится анализ потребности в рабочей силе, строительной технике и материалах, а также даётся оценка временных и финансовых затрат.
- График организации монолитных работ. Тут указываются сроки проведения этапов строительства, а также порядок реализации каждого этапа с учётом актуальных норм техники безопасности и экологических требований.
- Экологическое сопровождение и минимизация риска. Описываются меры по предотвращению возможного негативного воздействия возводимых монолитных конструкций на окружающую среду.




















































