Технология устройства и монтажа инженерной сети зависит от ее вида, назначения и проектного места расположения.
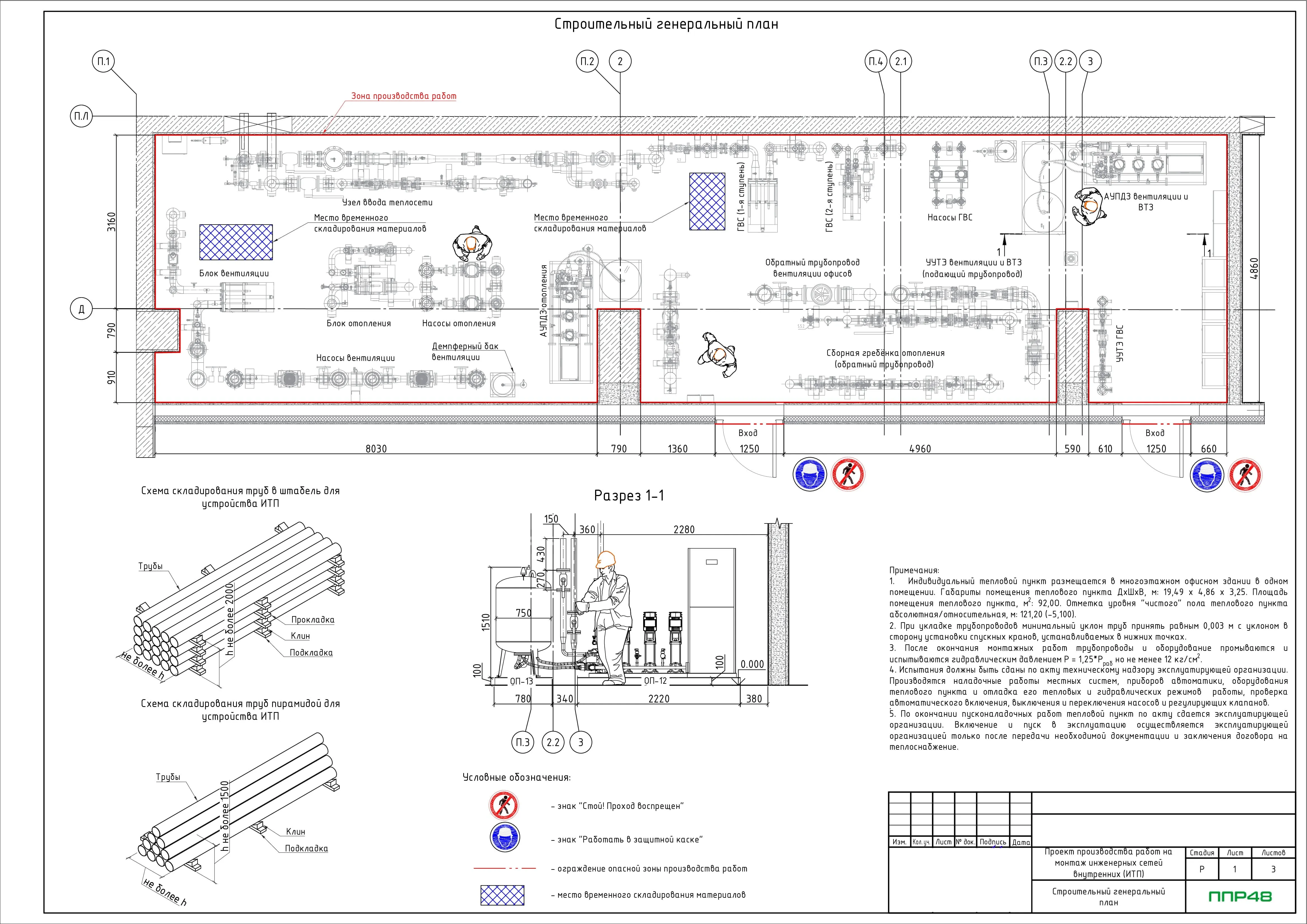
Все системы делятся на наружные и внутренние. ППР на внутренние инженерные системы состоит из пояснительной записки и графиков. В ППР на устройство наружных инженерных сетей кроме ПЗ и календарного плана, включают графические схемы (чертежи Autocad).
При наличии неогражденных перепадов по высоте более 1.8 м, в состав ППР на инженерные системы включают раздел по охране труда на высоте.
Для работ по монтажу инженерного оборудования на производственных объектах (внутри зданий и сооружений) рекомендуется в состав ППР включать раздел предусматривающий установку вспомогательных систем и оборудования - конструкции строительных лесов, тельферов и т.д.
ППР на строительство, монтаж, прокладку трубы в траншее состоит из целого ряда технологических операций, включая обратную засыпку. Документ разрабатывается на основе исходной проектной документации.




















































