Бесплатное устранение замечаний. Лицензия СРО. Работаем в ЭДО.
Разработка ППР на штукатурку стен и потолков в Москве
Срочная разработка. От 25 тысяч. От 2х дней. 100% гарантия согласования надзорными органами.
Данный тип документа входит в группу ППР на отделочные работы. Также мы можем разработать для вас ППР на покраску отштукатуренных стен и исполнительную документацию на вашем объекте.
Особенности разработки ППР на штукатурку внутренних стен и потолков
Компания ППР 48 обладает значительным опытом в подготовке проектов производства работ (ППР) на штукатурные работы для внутренних стенам и потолков и выделяет важные особенности, которые необходимо учитывать в процессе разработки документа:

-
Разработка технологических карт на все виды работ.
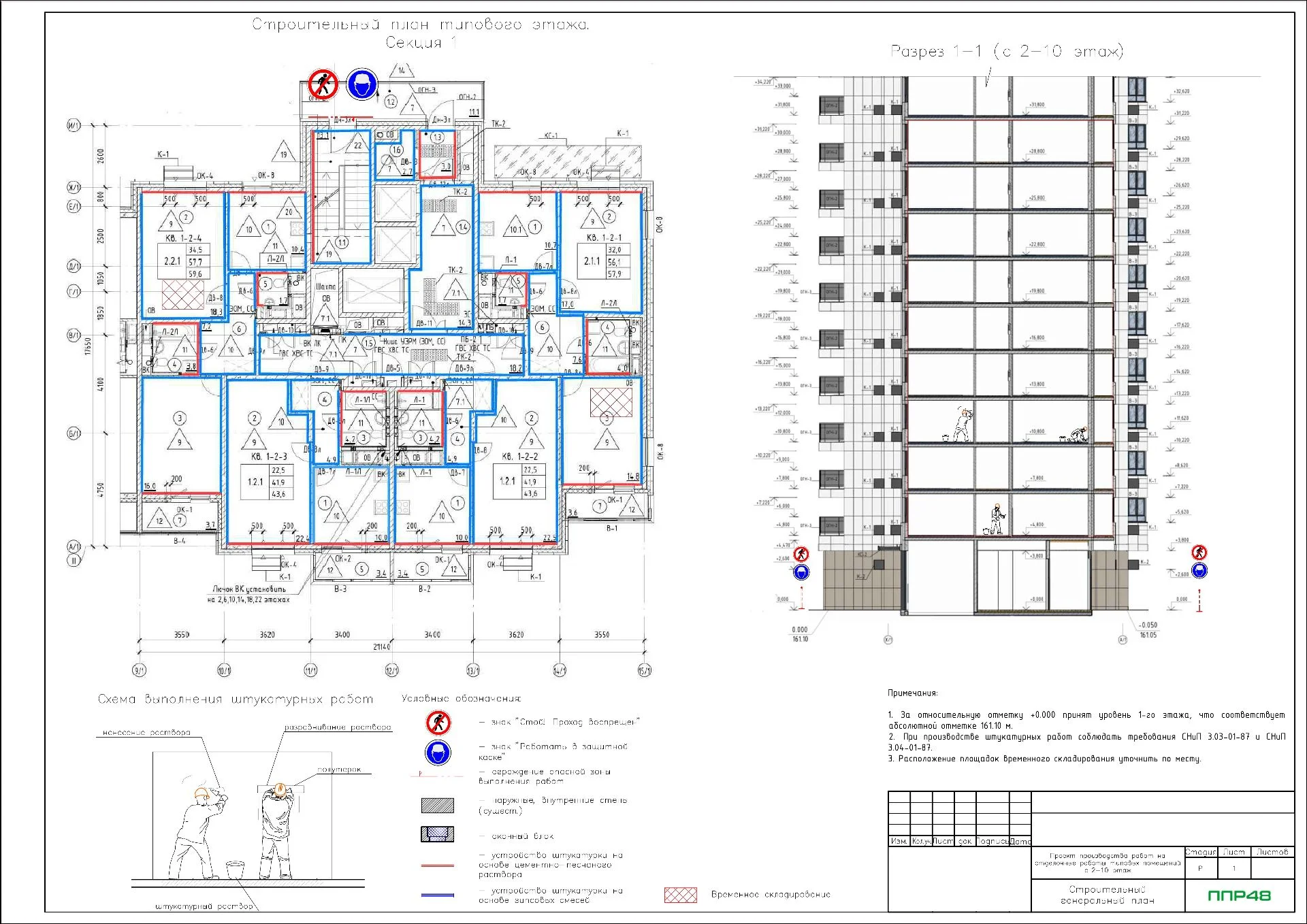
Штукатурные работы требуют обязательного включения в ППР технологических карт не только непосредственно на устройство штукатурных слоёв, но и на сопутствующие процессы — такие, как подготовка поверхностей, затирка, устройство маяков и контроль качества. Отдельно выделяется необходимость разработки технологических карт на монтаж и эксплуатацию средств подмащивания (лестниц, вышек-тур и пр.), которые обеспечивают безопасность и удобство выполнения работ на различных высотах.
-
Учет характеристик и выбора средств подмащивания.
При составлении ППР важно проанализировать возможности различных подмащивающих конструкций: определить тип, высоту, грузоподъемность, габариты и мобильность лестниц, стремянок, строительных вышек-тур. Нужно предусмотреть, чтобы они соответствовали требованиям безопасности и не мешали другим видам работ внутри объектов.
-
Особенности условий внутри помещений.
Необходимо учитывать стеснённые или ограниченные условия проведения штукатурных работ, а также согласовывать график работ с другими сопутствующими отделочными или инженерными мероприятиями. Всё это отражается в ППР отдельными разделами и схемами.
Наш опыт позволяет эффективно создавать технологические карты на штукатурные работы и монтаж средств подмащивания, обеспечивая соблюдение всех норм по охране труда и технике безопасности. Все это позволяет придать документу форму и содержание, максимально пригодные для согласования надзорными органами.
Специфика разработки ППР на штукатурку фасадов зданий
В компании ППР 48 накоплен значительный опыт для решения задач по изготовлению разрешительной документации.
Мы выделяем ряд ключевых особенностей, которые обязательно следует учитывать при подготовке ППР на устройство фасадной штукатурки:

Часто рабочая документация по фасадам представлена лишь в виде фотографий задний. Это затрудняет процесс изготовления графической части документа. В результате бывают случае когда для разработки ППР без полного пакета исходной документации приходится тратить больше времени, что в свою очередь приводит к его удорожанию.
Специфика штукатурных работ на фасадах заключается в обязательном использовании строительных лесов и других временных конструкций. Это означает, что в составе ППР в обязательном порядке должны разрабатываться технологические карты на монтаж и демонтаж строительных лесов, а также на монтаж и эксплуатацию других подъемных средств — если они используются. Такой подход в разработке проекта позволяет избежать трудностей в согласовании ППР в надзорных органах.
Еще одним важным аспектом такого документа является то, что работы на фасаде связаны с повышенным риском падения с высоты, поэтому в ППР подробно прорабатываются технологические карты и схемы организации систем коллективной и индивидуальной защиты от падения с высоты, в которые включают:
- ограждения,
- страховочные системы,
- сигнальные ограждения
- анкерные устройства,
А также порядок перемещения работников на высоте. Данные мероприятия отражаются не только в специальных технологических картах, но и во всех смежных разделах ППР. Особое внимание уделяется разделу по охране труда, который требует расширенного и детального описания всех мер, связанных с работой на высоте, монтажом и использованием лесов, организацией зон безопасности и системой инструктажей и допусков, а также регулярной проверкой состояния средств защиты.
Почему разработку ППР на штукатурные работы лучше доверить компании ППР48
Качественный ППР — гарантия быстрого согласования штукатурных работ и отсутствия простоев в работе. Наличие ошибок внутри документа могут привести к остановке стройки и серьезным штрафам.
Преимущества работы с ППР48:
- Экспертность:
Инженеры специализируются на штукатурных работах, учитывают все технологические нюансы.
- Оперативность:
Быстро разрабатываем ППР без потери качества, при необходимости работаем сверхурочно.
- Соблюдение норм:
Документация соответствует всем актуальным СП, ГОСТ, ВСН, её легко согласовать.
- Индивидуальный подход:
Учитываем особенности вашего объекта: тип материалов, сложность поверхностей, условия выполнения работ.
- Прозрачное ценообразование:
Оплата только за необходимый объём работ и решений.
Мы обеспечиваем быстрое согласование документации за счет своей экспертизы в общении с контролирующими органами.
Мы всегда доводим проекты до стадии 100% принятия, благодаря чему наши заказчики становятся для нас постоянными клиентами.




































