ППР48
 

Услуга по подготовке ППР на реконструкцию здания

От 2х дней. От 26 тысяч рублей. Бесплатное устранение замечаний. 100% гарантия согласования.
Проект производства работ на капитальный ремонт состоит из нескольких технологических карт. Тесно связан с ППР на капитальный ремонт.
проект производства работ (ППР) на реконструкцию сооружения

В состав ППР войдут: 

Перед началом осуществления реконструкции, необходимо произвести комплексное обследование, по результатам которого составляется технический отчет о состоянии реконструируемого здания или сооружения. Технологию производства работ необходимо принимать с учетом выводов и рекомендаций, содержащихся в заключении из технического отчета.

проект производства работ (ППР) на реконструкцию сооружения

Проект производства работ на реконструкцию здания или иного сооружения позволяет оптимизировать взаимодействия персонала, сэкономить денежные средства, уложиться в поставленные сроки и безопасно производить технологические операции. Если в рамках реконструкции здания или сооружения предполагается осуществлять демонтаж несущих элементов, то необходимо предусмотреть мероприятия, по перераспределению нагрузок с несущих конструкций на специальные вспомогательные устройства и сооружения (СВСиУ). Мероприятия по усилению несущих конструкций производят с целью увеличения их несущей способности. Отличительной особенностью данного проекта является наличие сложных технологических процессов, требующих тщательного контроля во время их выполнения.

Сколько стоит разработка ППР на реконструкцию здания?

Стандартный

Формат PDF
От 26.000р.
Документ содержит пояснительную записку, графики, строительный генеральный план. В некоторых случаях в состав проекта включают технологические схемы (чертежи).

Детализированный

Формат PDF
От 34.000р.
ППР содержит ПЗ, графики, СГП, технологические схемы (чертежи). В некоторых случаях в документ включают расчеты на прочность и устойчивость вспомогательных конструкций и сооружений.

Наши проекты

Какие еще нюансы стоит учитывать?

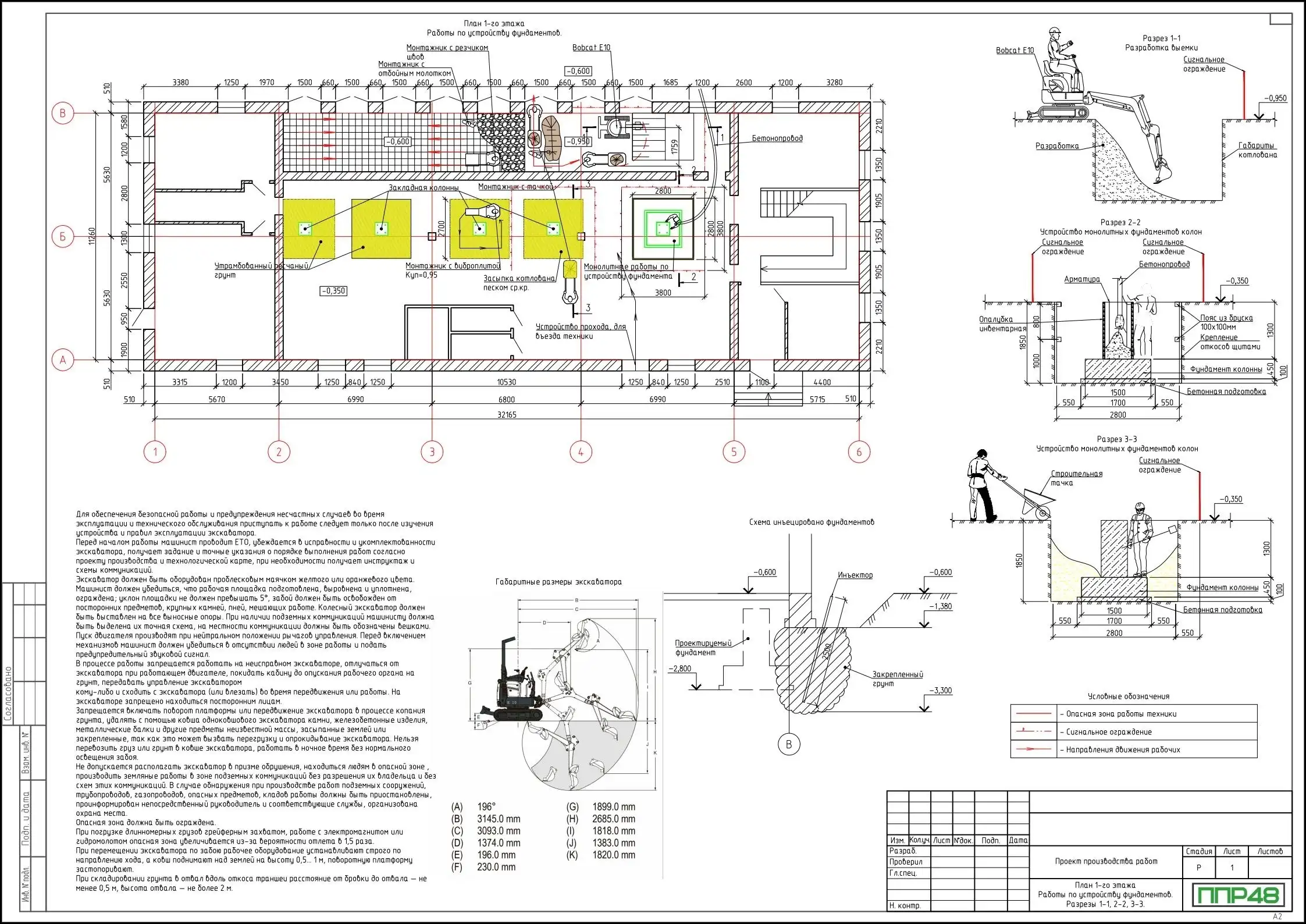
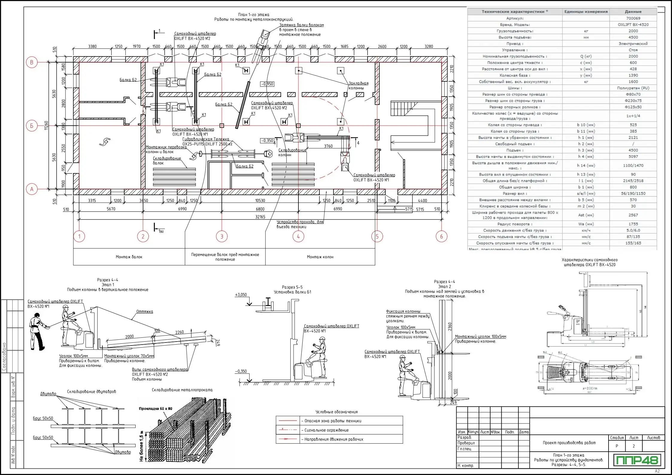
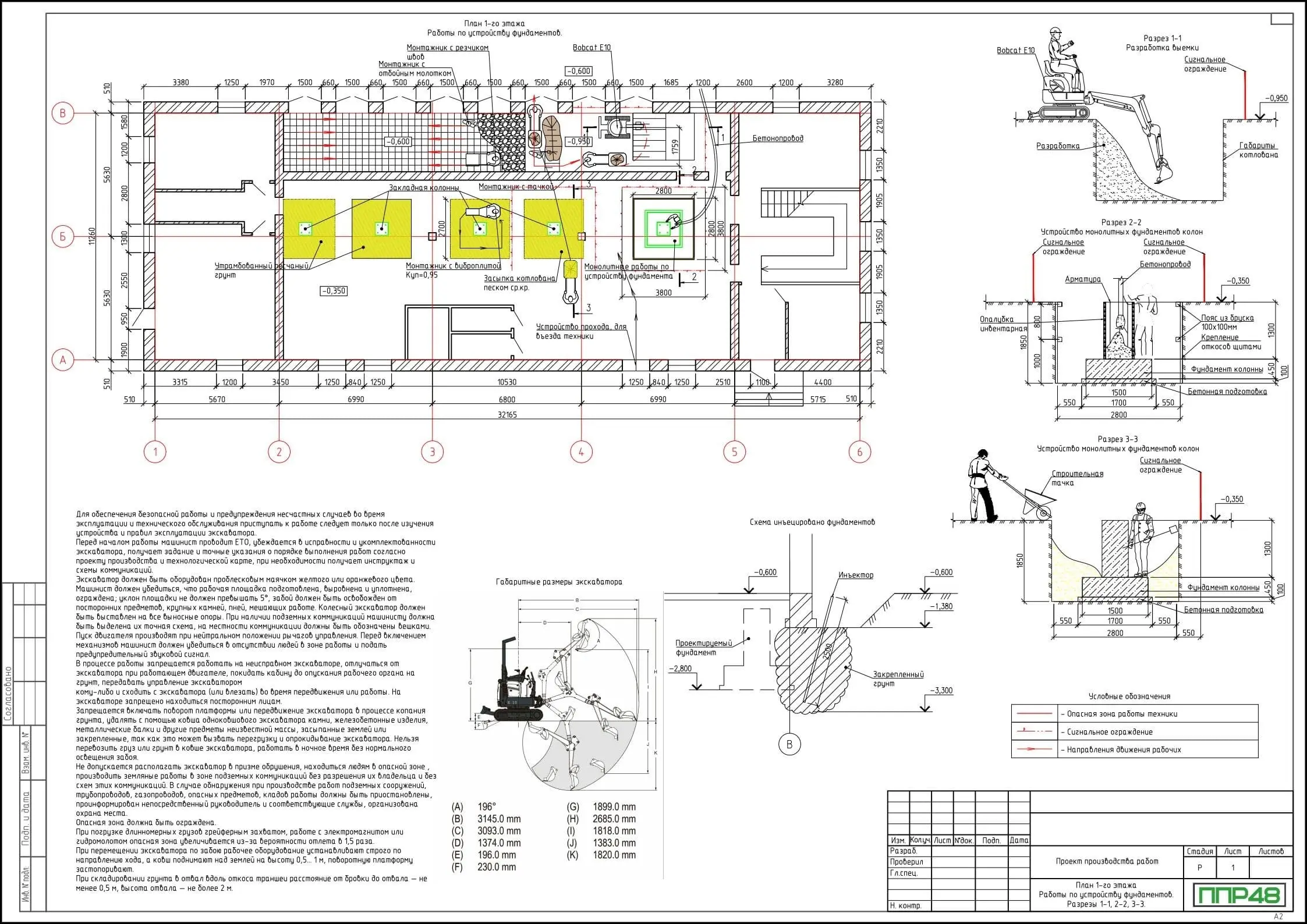
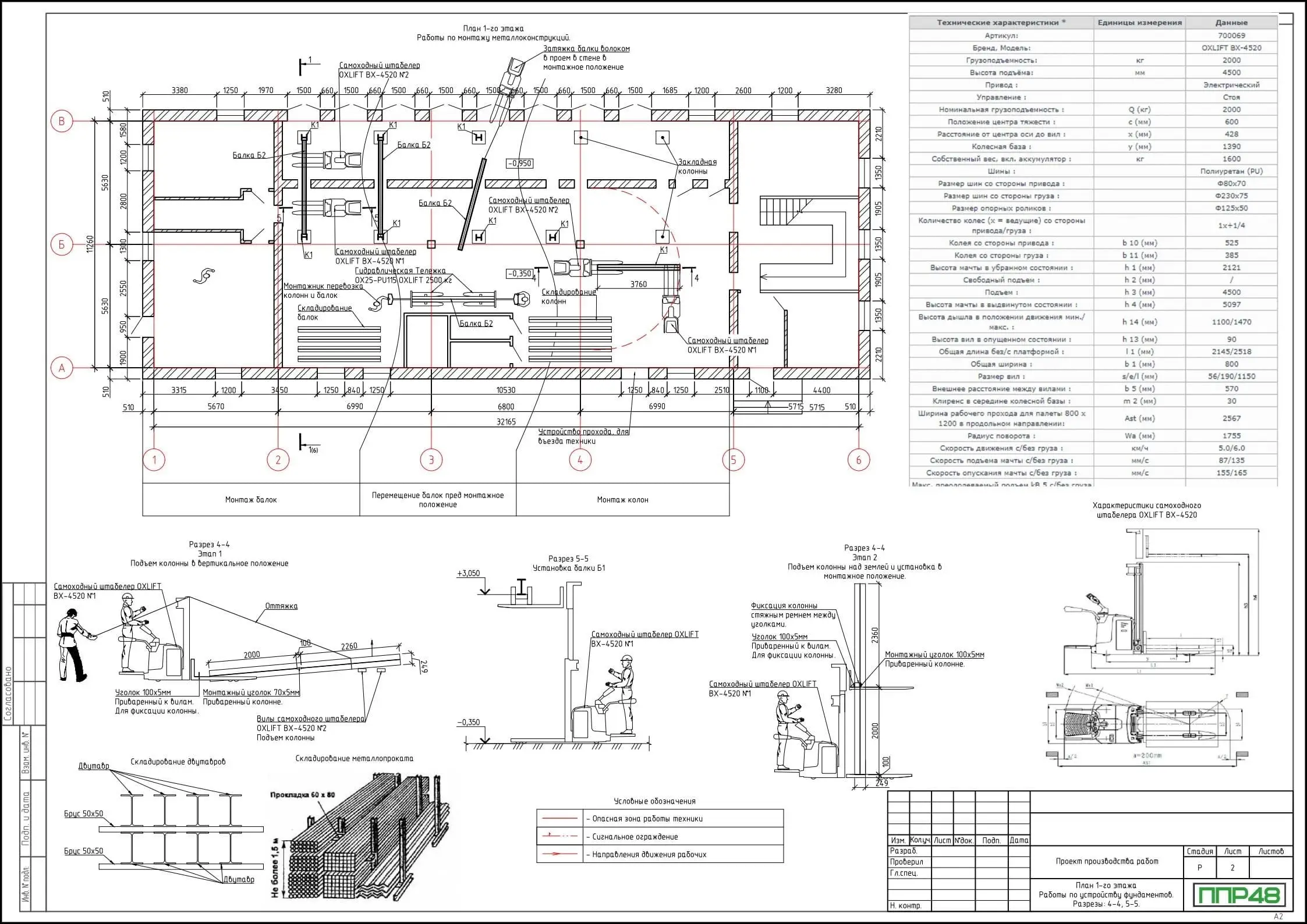
Разработка проекта производства работ (ППР) является ключевым этапом любого проекта реконструкции. ППР обеспечивает четкую организацию и контроль всех видов работ: монтаж металлоконструкций, электромонтаж, демонтаж, отделка внутри помещений, монолитные работы и другие виды строительных операций. В рамках плана проекта важную роль играет исходный проект организации строительства, который формирует последовательность и сроки выполнения СМР, а также распределение ответственности между участниками проекта.

Подготовительный период включает сбор и анализ проектной документации, изготовление схемы работ на высоте, составление расписания установки оборудования и подходов к зданию. Стоит уделить внимание охране труда и безопасности. В плане ППР также предусматриваются меры по охране окружающей среды и соблюдению требований к технической стороне проекта.

Проектирование документации проходит параллельно с выбором материалов и оборудования. В разделе инженерные сети и земляные работы прописываются мероприятия по устройству и прокладке коммуникаций, систем водоснабжения и прочих сетей. Создание проекта включает детальное описание способа монтажа кровли, бетонных работ и железобетонных элементов, взаимосвязь которых обеспечивает прочность и долговечность реконструируемого объекта.

Особое внимание уделяется монтажу металлоконструкций и фасадным мероприятиям. В документации прописываются схемы крепления, а также порядок проведения работ на стенах, окнах и фасадах. При реконструкции зданий часто возникают задачи по сносу отдельных элементов и повторной застройке, которые требуют четко выверенного плана и расчета стоимости выполнения СМР. В ППРк и ППР должны включать условия по доступу на высоту, требования по безопасности на каждом этапе.

Планирование включает определение путей движения кранов и техники, выбор подходящих лесов, а также учет зон осуществления СМР, лимитов доступа и ограничения по территориям. Разделы о дорогах, благоустройстве, схемах и адресах объектов помогают синхронизировать поставки материалов и логистику монтажа. В рамках проекта часто формируются секции по поставке материалов и оборудования, а также по заказу необходимых позиций для монтажа различных систем.

Важно также учесть этапы по сносу и очистки площадки, где требуется детальный план по вывозу отходов, утилизации и переработке материалов. В проектной документации особое место занимают разделы по схемам инженерных сетей, по планам установки оборудования и по графикам поставок. В сумме, ППР и план проекта организации строительства создают единую карту действий: от подготовки до завершающего этапа благоустройства и отделки, обеспечивая последовательность СМР и контроль качества на каждом участке.

Отзывы наших клиентов

ПОЛУЧИТЕ
КОММЕРЧЕСКОЕ
ПРЕДЛОЖЕНИЕ

ГАРАНТИРУЕМ
100% СОГЛАСОВАНИЕ

СРОК ИЗГОТОВЛЕНИЯ
ОТ 2-х ДНЕЙ

ПРЕДЛАГАЕМ
ИНДИВИДУАЛЬНЫЙ ПОДХОД

  • Вам нужны качественные услуги, для получения согласования со 100% гарантией?
  • Требуется выполнить пояснительные записки и чертежи не только для проверок, но и для использования на объекте?
  • Необходимо сориентироваться по стоимости разработки строительной документации?

Ответьте на несколько вопросов по вашему проекту и получите коммерческое предложение, оптимизированное под ваш случай!

Также наша компания занимается созданием технологических карт (ТК) на погрузо-разгрузочные работы