От 35 тысяч. От 3 дней. Бесплатное устранение замечаний. 100% гарантия согласования.
ППР на монтаж козлового крана в Москве
Профессиональное изготовление ППР на монтаж козлового крана в ППР48 на самых выгодных условиях. 100% согласование.
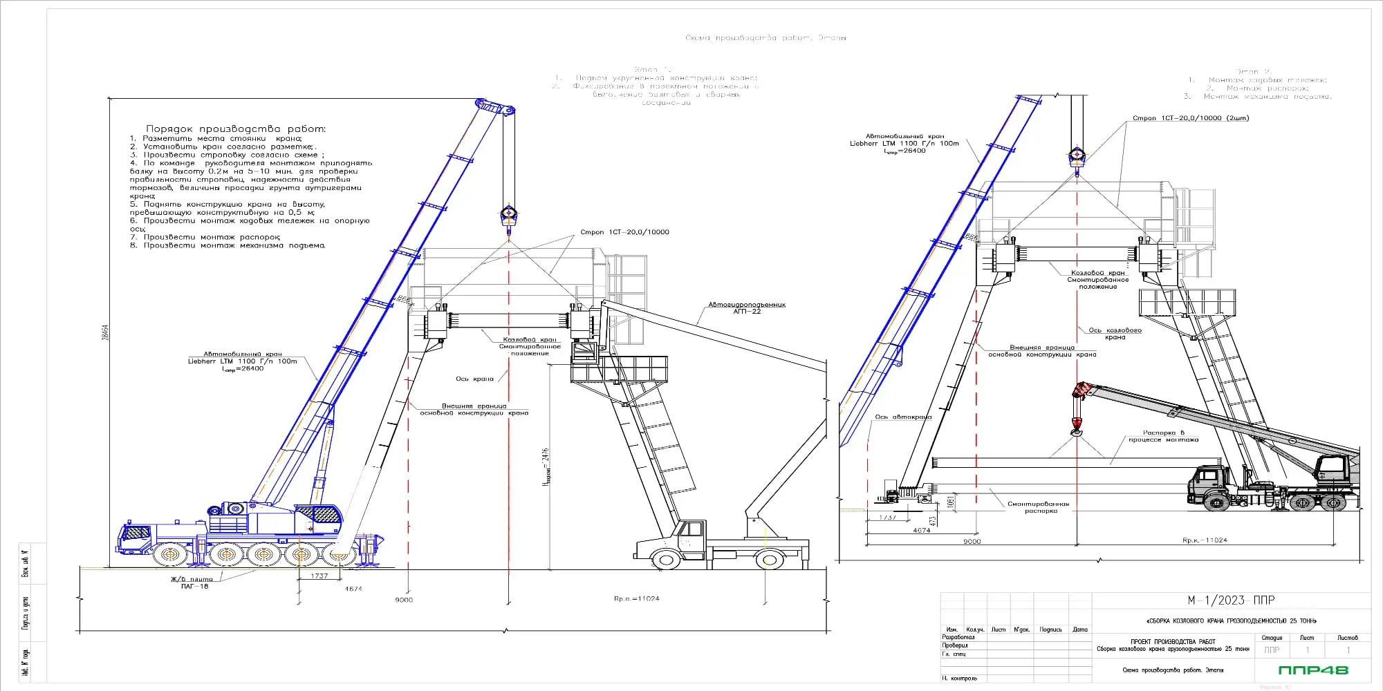
ППР на монтаж козлового крана — это документ организационно-технологического назначения, регламентирующий все этапы установки крана с соблюдением требований безопасности и специфики строительной площадки. Такой проект разрабатывается на основе детального анализа исходных данных: чертежей, техзадания, особенностей объекта и условий проведения монтажа.

ППР определяет порядок проведения работ, подбор техники, схемы перемещения техники и меры по снижению рисков, возникающих в процессе выполнения работы. Его основная задача — обеспечить эффективный и безопасный монтаж козлового крана в установленные сроки и в соответствии с действующими нормативами.
Какие исходные данные нам могут потребоваться для разработки ППР на монтаж козлового крана
Для успешной разработки проекта производства работ (ППР) на монтаж мостового крана нам потребуются собрать следующие исходные сведения:
- Фото и видеофиксация площадки будущих работ позволяет заранее продумать нюансы и выявить возможные ограничения.
- Техническое задание, а также специальные требования заказчика важно предоставить до начала работы, чтобы учесть все особенности объекта.
- Чертежи объекта, графики производства, схемы организации площадки и путей движения техники используются для точного планирования монтажных операций.
- Перечень применяемого оборудования и инструментов (всё, от подъёмных механизмов до грузозахватных приспособлений) помогает подобрать оптимальные решения по технике безопасности.
- При необходимости анализируем смету и ведомость объёмов работ либо дефектную ведомость для детализации основных этапов и оценки трудоёмкости.
- Важно заранее определить сроки начала и окончания монтажа — это напрямую влияет на планирование операций и логистических перемещений.
- Не следует забывать о корпоративных регламентах, технических условиях и внутренних стандартах компании-заказчика — эти документы могут существенно повлиять на требования к проекту.
- Обязателен к предоставлению проект организации строительства (ПОС) или генеральный план рабочей площадки для правильного размещения техники и рабочих зон.
Чем полнее предоставлены сведения, тем быстрее и вывереннее будет разработан проект. Например, без согласованных схем движения техники может затянуться составление графика.
Обязательные вещи которые мы учитываем в процессе создания ППР на монтаж козлового крана:
- Не всегда документация по крану содержит всю необходимую информацию, часто чертежи отсутствуют или выполнены в неудобных для редактирования форматах. Решением является цифровка данных: оцифровываем схемы и планы в AutoCAD/DWG ручным способом.
- Необходимо тщательно анализировать характеристики автокранов и других монтажных механизмов, чтобы избежать технических и организационных ошибок.
- Особенности промышленных объектов диктуют необходимость детальной увязки графика монтажа с основным производственным процессом — особенно, если работы ведутся в стеснённых условиях.
- Практика показывает: только комплексный анализ всех площадочных особенностей, возможностей оборудования и логистики позволяет избежать сбоев и форс-мажоров при установке мостового крана.
Если вам нужно оперативно получить коммерческое предложение по разработке ППР на мостовой кран, ответьте на несколько базовых вопросов о проекте — и мы подготовим документ с учётом ваших задач. При необходимости возможно оформление сопутствующих технических карт (ТК) на погрузочно-разгрузочные операции.
Что вы получите если обратитесь за услугой по разработке ППР на монтаж козлового крана именно к нам?
Наш опыт в ППР на монтаж козловых кранов позволяет быстро и качественно реализовывать проекты для промышленных и гражданских объектов различной сложности, даже при отсутствии актуальной проектной документации. Инженерные решения разрабатываются с учётом требований по безопасности, организации труда и снижения рисков, а оформление документации осуществляется максимально оперативно — от двух дней с гарантией согласования.
Особое внимание в наших проектах уделяется специфике работы оборудования в условиях действующего производства: разрабатываем оптимальные графики, прорабатываем схемы размещения техники, оцениваем риски и обеспечиваем безопасное выполнение всех этапов монтажа.
Каждый заказ — это индивидуальный подход, профессиональное сопровождение, консультации на этапе согласования и готовые решения, оптимально подходящие для вашего объекта.






































