Пример ППР на комплекс монолитных работ
Специалистам нашей компании была поставлена задача разработать ППР на комплекс монолитных работ на объекте “Многоквартирный дом со встроенно-пристроенными помещениями и встроенным подземным гаражом.
В результате инженерами ППР48 был разработан ППР содержащий практические рекомендации, целью которых является оптимизация строительных процессов, связанных с устройством кладки. с устройством монолитных конструкций, приведены указания по охране труда, контролю качества и др.
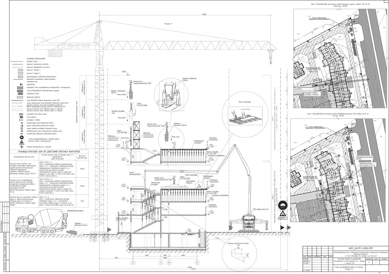
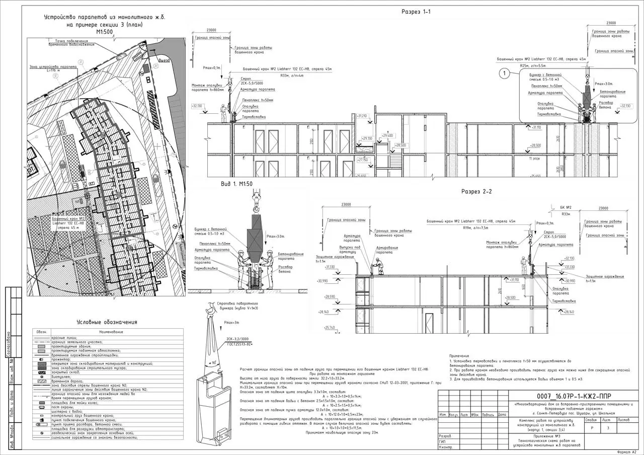
В графической части к данному проекту был разработан строительный генеральный план, чертежи производства работ по этапам, технологическую схему работ на устройство монолитных железобетонных парапетов, схемы строповок и складирования.
Как вы видите из данного примера "ППР на комплекс монолитных работ", специалисты ППР48 профессионально справились с поставленной задачей. Если вам необходима разработка проекта на монолитные работы, оставьте заявку и наш специалист свяжется с вами для уточнения деталей проекта.
















