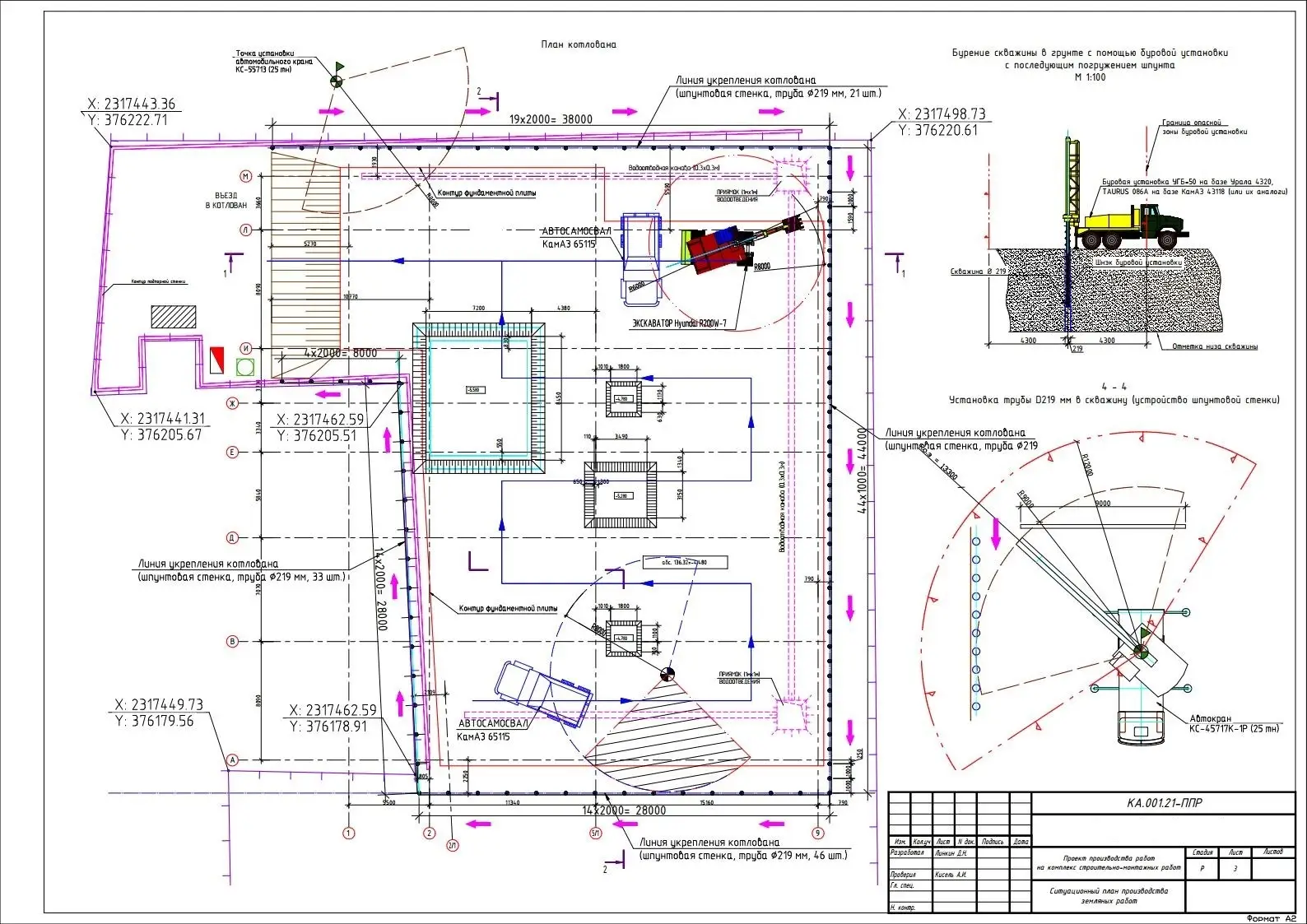
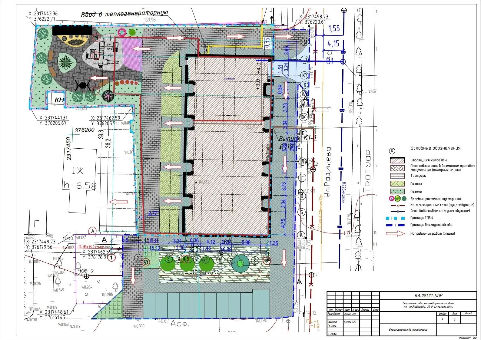
Компания ППР48 выполнила ППР на строительство многоквартирного дома
Компания ППР48 рада представить разработанный ею комплексный ППР на строительство многоквартирного дома. Наша команда опытных специалистов в области строительства внимательно изучила все требования и нормативы, установленные законодательством, и разработала детальный план действий для успешной реализации проекта.
Мы гарантируем качественное выполнение всех работ в соответствии с требованиями и нормативами, а также соблюдение всех сроков и бюджета проекта. Наша компания имеет богатый опыт в реализации строительных проектов и готова предоставить вам профессиональную помощь на всех этапах проекта.
































